襯氟止回閥

H41F46/F3-10/16/25C/P ANSI:150Lb 300Lb

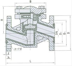
H41F46/F3-10/16/25C/P ANSI:150Lb 300Lb結構圖
產品特點及用途
FEP(F46)、PCTFE(F3)襯氟止回閥(襯里閥門)是一種適應于臥式安裝的升降式止回閥,適用在-50℃~150℃的各種濃度的王水、硫酸、鹽酸、氫氟酸和各種有機酸、強酸、強氧化劑,上海賽泰泵閥有限公司生產的FEP襯氟止回閥還適用于各種濃度的強堿有機溶劑以及其它腐蝕性氣體、液體介質的管路上使用。
主要零件材料及標準
| 零件名稱 | 材 料 | 技術規范 | |
| 閥體 | 鑄鐵、鑄鋼、不銹鋼、內襯F46 、F3 | 設計標準 | GB12236 |
| 閥瓣 | 鑄鋼、不銹鋼、內外襯F46 、F3 | 結構長度 | GB12221 |
| 閥蓋 | 灰鑄鋼、鑄鋼、不銹鋼、內襯F46 、F3 | 法蘭標準 | JB/T79-78 |
| 墊圈 | F4 | GB9113.1-26 | |
| 檢驗試驗 | GB/T13927 | ||
外型連接尺寸及重量
| 公稱通徑 | PN1.6(MPa)主要外形尺寸和連接尺寸(mm) | 參考值 | 重量 | |||||||
| DN | L | D | D1 | D2 | f | b | Z-Φd | B | H | ?K |
| 15 | 130 | 95 | 65 | 43 | 3 | 14 | 4-Φ14 | 95 | 55 | 6 |
| 20 | 150 | 105 | 75 | 50 | 3 | 14 | 4-Φ14 | 105 | 58 | 7 |
| 25 | 160 | 115 | 85 | 60 | 3 | 16 | 4-Φ14 | 115 | 60 | 8 |
| 32 | 180 | 135 | 100 | 68 | 3 | 18 | 4-Φ18 | 140 | 75 | 11 |
| 40 | 200 | 145 | 110 | 80 | 3 | 18 | 4-Φ18 | 150 | 82 | 15 |
| 50 | 230 | 160 | 125 | 100 | 3 | 20 | 4-Φ18 | 165 | 95 | 18 |
| 65 | 290 | 180 | 145 | 115 | 3.5 | 20 | 4-Φ18 | 190 | 105 | 25 |
| 80 | 310 | 195 | 160 | 130 | 3.5 | 22 | 8-Φ18 | 200 | 120 | 35 |
| 100 | 350 | 215 | 180 | 150 | 4 | 24 | 8-Φ18 | 225 | 135 | 46 |
| 125 | 400 | 245 | 210 | 180 | 4 | 26 | 8-Φ18 | 260 | 158 | 65 |
| 150 | 480 | 280 | 240 | 210 | 4 | 28 | 8-Φ23 | 300 | 180 | 92 |
| 200 | 600 | 335 | 295 | 260 | 5 | 32 | 8-Φ23 | 360 | 215 | 152 |
| 250 | 730 | 405 | 355 | 319 | 5 | 36 | 12-Φ26 | 450 | 240 | 230 |
| 300 | 850 | 460 | 410 | 370 | 6 | 40 | 12-Φ26 | 500 | 300 | 330 |
注:
1.本網頁的襯氟止回閥結構、結構圖、尺寸、參數等主要性能參數,以及安裝尺寸圖、安裝尺寸表均只適用于參考,詳細CAD圖、安裝圖、以及產品說明書請向賽泰閥門營銷人員索取。
2.由于編輯水平有限,錯誤和不妥之處在所難免,真誠希望您批評指正。
襯氟止回閥相關產品
下一頁:襯氟放料球閥
返回至本系列目錄:襯里閥門
上一頁:襯氟旋塞閥