真空隔膜閥
主要功能特點
GM真空隔膜閥(襯里閥門)是上海賽泰泵閥有限公司設計開發供接通或切斷真空系統之用。連接管焊接式真空隔膜閥更是溴化鋰制冷設備中的理想配件。高真空隔膜閥的適用介質為空氣及非腐蝕性氣體。連接法蘭標準按GB6070或GB4982規定,也可為連接管焊接型式。
產品簡圖

GM系列高真空隔膜閥

GM系列高真空隔膜閥外形尺寸圖

GM系列高真空隔膜閥結構圖
主要技術規范
| 適用范圍Pa | 103~1.3×10-4 |
| 漏率Pa.L/S | 6.7×10-4 |
| 介質溫度℃ | 隔膜為丁腈橡膠時-25~+80 |
| 隔膜為氟橡膠時-30 -150 |
主要零件材料
| 零件名稱 | 材料 |
| 閥體 | 碳鋼、不銹鋼 |
| 隔膜 | 丁腈橡膠、氟膠 |
| 閥桿 | 不銹鋼 |
主要外形、連接尺寸
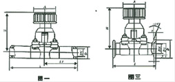
Ⅰ型連接管焊隔膜閥外形及連接尺寸(圖一)
| 型號 \ 尺寸 | DN | D | H | A | L | L1 |
| GM-10C-H(Ⅰ) | 10 | 19 | 80 | 55 | 240 | 120 |
| GM-25C-H(Ⅰ) | 25 | 32 | 105 | 80 | 240 | 120 |
| GM-40C-H | 40 | 45 | 133 | 100 | 240 | 120 |
| GM-50C-H | 50 | 57 | 157 | 100 | 240 | 120 |
| GM-10D-H(Ⅰ) | 10 | 19 | 77.5 | 50 | 150 | 150 |
| GM-25C-H(Ⅰ) | 25 | 32 | 105 | 60 | 75 | 75 |
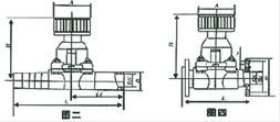
Ⅱ型連接管焊隔膜閥外形及連接尺寸(圖二)
| 型號 \ 尺寸 | DN | D | H | A | L | L1 |
| GM-10C-H(Ⅱ) | 10 | 19 | 80 | 55 | 195 | 120 |
| GM-25C-H(Ⅱ) | 25 | 32 | 105 | 80 | 236 | 120 |
| GM-10D-H(Ⅱ) | 10 | 19 | 77.5 | 50 | 150 | 75 |
| GM-25D-H(Ⅱ) | 25 | 32 | 105 | 66 | 175 | 75 |
Ⅲ活套法蘭連接隔膜閥外形及連接尺寸(圖三)
| 型號 \ 尺寸 | DN | D | D1 | H | A | L |
| GM-10C-KF | 10 | 30 | 12.2 | 80 | 55 | 75 |
| GM-25C-KF | 25 | 40 | 26.2 | 105 | 80 | 120 |
| GM-40-KF | 40 | 50 | 41.2 | 133 | 100 | 120 |
Ⅳ活套法蘭連接隔膜閥外形及連接尺寸(圖四)
| 型號 \ 尺寸 | DN | D | D1 | H | A | L | n-Фc |
| GM-10C | 10 | 46 | 36 | 80 | 55 | 75 | 4-Ф6 |
| GM-25C | 25 | 70 | 55 | 105 | 80 | 120 | 4-Ф7 |
| GM-40C | 40 | 100 | 80 | 133 | 100 | 150 | 4-Ф9 |
| GM-50C | 50 | 110 | 90 | 157 | 100 | 180 | 4-Ф9 |
注:
1.本網頁的真空隔膜閥結構、結構圖、尺寸、參數等主要性能參數,以及安裝尺寸圖、安裝尺寸表均只適用于參考,詳細CAD圖、安裝圖、以及產品說明書請向賽泰閥門營銷人員索取。
2.由于編輯水平有限,錯誤和不妥之處在所難免,真誠希望您批評指正。
真空隔膜閥相關產品
下一頁:內螺紋隔膜閥
返回至本系列目錄:襯里閥門
上一頁:電動隔膜閥