拉桿伸縮過濾器
產品概述
Y型拉桿伸縮過濾器是采用新型的設計,把拉桿伸縮過濾器與伸縮接頭組合,結構簡單,使用方便,解決了各種不同標準產品的法蘭間長度不同而造成固定管道上安裝不便的缺陷,拉桿伸縮過濾器主要用于高層建設、多層建筑或工廠內給排水配管,通常安裝于減壓閥、泄壓閥、定水位閥或其它主要設備的進口端,安裝了拉桿伸縮過濾器后便于削除管道雜物或安裝拆卸以保證閥類或設備之正常使用,上海賽泰泵閥有限公司生產的Y型拉桿伸縮過濾器適用介質溫度為:0~80℃。(法蘭尺寸PN1.0MPa按GB4216.4-14標準,PN1.6MPa按GB4216.5-84標準)

Y型拉桿伸縮過濾器

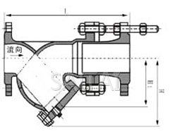
Y型拉桿伸縮過濾器結構圖
主要技術參數
| 型號 | 公稱壓力 PN(MPa) | 耐壓試驗壓力 (MPa) | 工作壓力 (MPa) | 
| YSTF-10 | 1.0 | 1.1 | 1.0 | 
| YSTF-16 | 1.6 | 1.76 | 1.6 | 
主要零件材料
| 零件名稱 | 管體 | 濾網 | 伸縮拉桿 | 0形圈 | 
| 材料 | 灰鑄鐵或球墨鑄鐵鋼 | 不銹鋼 | 碳鋼鍍鋅 | 丁腈橡膠 | 
主要外形尺寸
| 公稱通徑DN(?L) | L | H1 | H | 
| 50 | 300 | 155 | 195 | 
| 65 | 320 | 183 | 245 | 
| 80 | 380 | 210 | 295 | 
| 100 | 420 | 250 | 344 | 
| 125 | 500 | 305 | 415 | 
| 150 | 550 | 358 | 485 | 
| 200 | 650 | 450 | 602 | 
| 250 | 775 | 503 | 710 | 
| 300 | 900 | 578 | 815 | 
| 350 | 1025 | 598 | 844 | 
| 400 | 1150 | 618 | 872 | 
      注:
      1.本網頁的拉桿伸縮過濾器結構、結構圖、尺寸、參數等主要性能參數,以及安裝尺寸圖、安裝尺寸表均只適用于參考,詳細CAD圖、安裝圖、以及產品說明書請向賽泰閥門營銷人員索取。
      2.由于編輯水平有限,錯誤和不妥之處在所難免,真誠希望您批評指正。 
拉桿伸縮過濾器相關產品
下一頁:籃式過濾器
返回至本系列目錄:過濾器
上一頁:Y型過濾器
