氣動截止閥

氣動截止閥

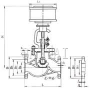
氣動截止閥外形尺寸圖
結構特點:
上海賽泰閥門有限公司生產的氣動截止閥主要結構特點有:
1選材考究,符合國內、外相關標準,結構合理,造型美觀。
2、氣動截止閥閥瓣、閥座密封面采用鐵基合金堆焊或司太立(Stellite)鈷基硬質合金堆焊而成,耐磨、耐高溫、耐腐蝕、抗擦傷性能好,使用壽命長。
4、氣動截止閥閥桿經調質及表面氮化處理,有良好的抗腐蝕性和抗擦傷性。
5、可采用各種配管法蘭標準及法蘭密封面型式,滿足各種工程需要及用戶要求。
6、閥體材料品種齊全,填料、墊片可根據實際工況或用戶要求合理選配,能適用于各種壓力、溫度及介質工況。
7、倒密封采用螺紋連接密封座或本體堆焊奧氏體不銹鋼而成,密封可靠,更換填料可在不停機情況下進行,方便快捷,不影響系統運行。
氣動截止閥采用雙作用氣缸,利用上腔進氣或者下腔進氣來遠距離控制閥門,操作方便、靈活。
氣缸使用介質:壓縮空氣,氮氣。氣動截止閥結構簡單、維護方便;工作行程小,開啟關閉時間短;閥瓣與閥座密封面采用錐面密封,關閉摩擦力小,耐沖刷,密封可靠。氣動截止閥的閥座可為更換式閥座,可任意組合與關閉件密封面材料的配對,以滿足工況要求,延長使用壽命。
主要零件材料
| 閥體/閥蓋 | 閥瓣 | 密封圈 | 閥桿 | 填料 | 適用介質 | 適用溫度(≤℃) |
| WCB | WCB+D507MO | D577 | 2Crl3 | 柔性石墨 | 水、油品、蒸汽 | 425 |
| ZGlCrl8Ni9Ti | 0Crl8Ni9Ti Stellite12 | Stellite6 | lCrl8Ni9Ti | PTFE | 硝酸類 | 200 |
| ZGlCrl8Ni2Mo2Ti | CF8M Stellite12 | lCrl8Ni2Mo2Ti | lCrl8Ni2Mo2Ti | PTFE | 磷酸類、堿類、混酸 | 200 |
| ZG00Crl7Nil4M02 | CF3M Stellite12 | Stel1ite6 | 316L | PTFE | 磷酸類、尿素、甲銨液 | 200 |
| ZGlCr5MO | ZGlCr5MO Stellite12 | Stel1ite6 | 25Cr2Mo1VA | 柔性石墨 | 水、油品、蒸汽 | 550 |
主要外型尺寸、連接尺寸及重量
| 公稱壓力PN(MPa) | 公稱通徑DN(mm) | 標準值 | 參考值 | ||||||||
| L | D | D1 | n2 | D6 | b | f | f1 | Z-φd | L1 | ||
| 1.6 | 50 | 230 | 160 | 125 | 100 | 16 | 3 | 4-φ18 | 185 | ||
| 65 | 290 | 180 | 145 | 120 | 18 | 3 | 4-φ18 | 232 | |||
| 80 | 310 | 195 | 160 | 135 | 20 | 3 | 8-φ18 | 232 | |||
| 100 | 350 | 215 | 180 | 155 | 20 | 3 | 8-φ18 | 232 | |||
| 125 | 400 | 254 | 210 | 185 | 22 | 3 | 8-φ18 | 283 | |||
| 150 | 480 | 280 | 240 | 210 | 24 | 3 | 8-φ23 | 283 | |||
| 200 | 600 | 335 | 295 | 265 | 26 | 3 | 12-φ23 | 283 | |||
| 250 | 622 | 405 | 355 | 320 | 30 | 3 | 12-φ25 | 283 | |||
| 300 | 698 | 460 | 410 | 375 | 30 | 4 | 12-φ25 | 283 | |||
| 2.5 | 50 | 230 | 160 | 125 | 100 | 20 | 3 | 4-φ18 | 185 | ||
| 65 | 290 | 180 | 145 | 120 | 22 | 3 | 8-φ18 | 232 | |||
| 80 | 310 | 195 | 160 | 135 | 22 | 3 | 8-φ18 | 232 | |||
| 100 | 350 | 230 | 190 | 160 | 24 | 3 | 8-φ23 | 232 | |||
| 125 | 400 | 270 | 220 | 188 | 28 | 3 | 8-φ25 | 283 | |||
| 150 | 480 | 300 | 250 | 218 | 30 | 3 | 8-φ25 | 283 | |||
| 200 | 600 | 360 | 310 | 278 | 34 | 3 | 12-φ25 | 283 | |||
| 250 | 622 | 425 | 370 | 332 | 36 | 3 | 12-φ30 | 283 | |||
| 300 | 698 | 485 | 430 | 390 | 40 | 4 | 16-φ30 | 283 | |||
| 4.0 | 50 | 230 | 160 | 125 | 100 | 88 | 20 | 3 | 4 | 4-φ18 | 185 |
| 65 | 290 | 180 | 145 | 120 | 110 | 22 | 3 | 4 | 8-φ18 | 232 | |
| 80 | 310 | 195 | 160 | 135 | 121 | 22 | 3 | 4 | 8-φ18 | 232 | |
| 100 | 350 | 230 | 190 | 160 | 150 | 24 | 3 | 4.5 | 8-φ23 | 232 | |
| 125 | 400 | 270 | 220 | 188 | 176 | 28 | 3 | 4.5 | 8-φ25 | 283 | |
| 150 | 480 | 300 | 250 | 218 | 204 | 30 | 3 | 4.5 | 8-φ25 | 283 | |
| 200 | 600 | 375 | 320 | 282 | 260 | 38 | 3 | 4.5 | 12-φ30 | 283 | |
注:
1.本網頁的氣動截止閥結構、結構圖、尺寸、參數等主要性能參數,以及安裝尺寸圖、安裝尺寸表均只適用于參考,詳細CAD圖、安裝圖、以及產品說明書請向賽泰閥門營銷人員索取。
2.由于編輯水平有限,錯誤和不妥之處在所難免,真誠希望您批評指正。
氣動截止閥相關產品
下一頁:電動截止閥
返回至本系列目錄:截止閥