100X活塞式遙控浮球閥
產品概述
100X活塞式遙控浮球閥(水力控制閥)的閥盤與活塞通過閥桿連接為一體,利用浮球導閥的啟閉來控制敏感元件活塞的上下運動。而達到主閥的啟閉。00X活塞式遙控浮球閥使用安全可靠、調試方便、壽命長。上海賽泰泵閥有限公司生產的100X活塞式遙控浮球閥實用于口徑大于等于500mm的管路中。

100X活塞式遙控浮球閥

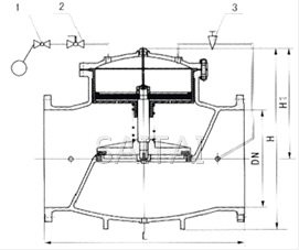
100X活塞式遙控浮球閥結構圖1、浮球導閥 2、球閥 3、針形閥
典型安裝圖

100X活塞式遙控浮球閥典型安裝示意圖
主要外形尺寸
| DN | 500 | 600 | 700 | 800 |
| L | 1075 | 1230 | 1300 | 1450 |
| H1 | 620 | 695 | 930 | 950 |
| H | 750 | 850 | 1120 | 1150 |
注:
1.本網頁的100X活塞式遙控浮球閥結構、結構圖、尺寸、參數等主要性能參數,以及安裝尺寸圖、安裝尺寸表均只適用于參考,詳細CAD圖、安裝圖、以及產品說明書請向賽泰閥門營銷人員索取。
2.由于編輯水平有限,錯誤和不妥之處在所難免,真誠希望您批評指正。
100X活塞式遙控浮球閥相關產品
下一頁:107X活塞式安全泄壓持壓閥
返回至本系列目錄:水力控制閥
上一頁:100S 角式排泥閥