復合式排氣閥
復合式排氣閥特點用途
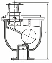
CARX復合式排氣閥(水力控制閥)的閥體為橢圓桶狀,閥門內件包括不銹鋼浮球、杠桿及閥瓣。復合式排氣閥一般安裝在泵出口處或配水管線中,用來排除集積在管中的空氣,以提高管線及不泵的使用效率,當管內一旦產生負壓時,復合式排氣閥可迅速吸入外界空氣,以防止管線因負壓而損壞。上海賽泰泵閥有限公司生產的復合式排氣閥的適用介質溫度:0~80℃。

CARX復合式排氣閥結構圖2

CARX復合式排氣閥結構圖1

CARX復合式排氣閥
復合式排氣閥工作原理
當管內開始注水時,復合式排氣閥閥瓣處在開啟的位置,進行大量排氣,當空氣排完時,閥內充滿水,浮球上升并帶動閥瓣關閉,停止排氣,當管內水正常輸送時,如有少量空氣聚集在閥內到相當的程度,閥內水位下降,此時空氣由小孔排出。當水泵停止時,管內水流空或遇管內產生負壓,此時塞頭迅速開啟,吸入空氣,確保管線安全。
復合式排氣閥主要參數
| 型號 | 試驗壓力(MPa) | 公稱通徑 | 連接形式 | 公稱壓力DN(MPa) | |
| 殼體實驗壓力 | 密封實驗壓力 | ||||
| CARX-10 | 1.5 | 1.1 | 25-32 | 內螺紋 | 1.0 |
| 50-200 | 法蘭 | 1.6 | |||
復合式排氣閥主要零件材料
| 零件名稱 | 閥體 | 閥蓋 | 浮球 | 杠桿架 | 杠桿 | 塞頭 |
| 材料 | 球墨鑄鐵 | 球墨鑄鐵 | 不銹鋼 | 不銹鋼 | 不銹鋼 | 鉛青鋼 |
復合式排氣閥主要外形尺寸:(法蘭連接尺寸按BG4216-84標準)
| 公稱通徑 DN | 尺 寸 mm | ||||
| L | L1 | H | Z | d | |
| 25 | 280 | 176 | 330 | - | - |
| 32 | 280 | 176 | 330 | - | - |
| 50 | 360 | 208 | 475 | 4 | 17.5 |
| 65 | 360 | 208 | 475 | 4 | 17.5 |
| 80 | 400 | 244 | 552 | 8 | 17.5 |
| 100 | 465 | 275 | 623 | 8 | 17.5 |
| 150 | 537 | 332 | 686 | 8 | 22 |
| 200 | 537 | 332 | 868 | 8/12 | 22 |
注:
1.本網頁的復合式排氣閥結構、結構圖、尺寸、參數等主要性能參數,以及安裝尺寸圖、安裝尺寸表均只適用于參考,詳細CAD圖、安裝圖、以及產品說明書請向賽泰閥門營銷人員索取。
2.由于編輯水平有限,錯誤和不妥之處在所難免,真誠希望您批評指正。
復合式排氣閥相關產品
下一頁:活塞式快開排泥閥
返回至本系列目錄:水力控制閥
上一頁:微量排氣閥