API美標鑄鋼固定球閥

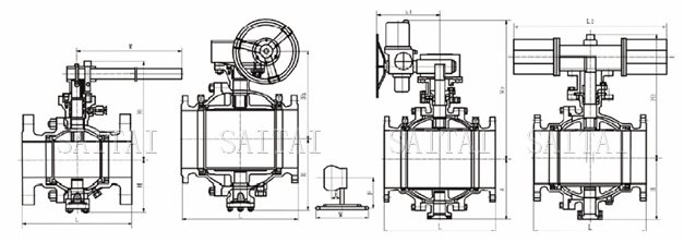
API美標鑄鋼固定球閥外形尺寸圖
API美標鑄鋼固定球閥應用規范:
- 設計、制造 按API 6 D
- 結構長度按 ANSI BI6.10
- 連接法蘭:ANSI BI6.5MSS-SP44
- 閥門檢查和試驗按API STD.598
API美標鑄鋼固定球閥 Class 150Lb 主要連接尺寸及重量
| 公稱通徑DN | 2 | 2 1/2 | 3 | 4 | 5 | 6 | 8 | 10 | 12 | 14 | 16 | 18 | 20 | 24 | 28 | 32 | 36 | 40 | |
| d1 | 51 | 64 | 76 | 102 | 127 | 152 | 203 | 254 | 305 | 337 | 387 | 438 | 489 | 591 | 686 | 781 | 876 | 978 | |
| L | RF | 178 | 191 | 203 | 229 | 356 | 394 | 457 | 533 | 610 | 686 | 762 | 864 | 914 | 1067 | 1245 | 1372 | 1524 | 1753 |
| BW | 216 | 241 | 283 | 305 | 381 | 457 | 521 | 559 | 635 | 762 | 838 | 914 | 991 | 1143 | 1346 | 1524 | 1727 | 1880 | |
| H | 102 | 114 | 127 | 152 | 184 | 219 | 273 | 360 | 395 | 430 | 470 | 550 | 580 | 700 | 800 | 950 | 1100 | 1200 | |
| 手動 | H1 | 107 | 125 | 152 | 178 | 300 | 330 | 398 | 495 | 580 | 625 | 670 | 698 | 840 | 1050 | 1100 | 1150 | 1247 | 1374 |
| E | - | - | - | - | - | - | 116 | 116 | 171 | 171 | 257 | 257 | 257 | 150 | 83 | 83 | 123 | 123 | |
| F | - | - | - | - | - | - | 350 | 350 | 420 | 420 | 400 | 400 | 400 | 410 | 650 | 650 | 735 | 735 | |
| W | 230 | 400 | 400 | 650 | 1050 | 150 | 600 | 600 | 800 | 800 | 800 | 800 | 800 | 800 | 800 | 800 | 800 | 00 | |
| Wt(Kg) | 12 | 16 | 22 | 35 | 58 | 74 | 205 | 322 | 460 | 576 | 864 | 1280 | 1600 | 3540 | 4500 | 5940 | 7540 | 9320 | |
| 電動 | H2 | - | - | - | - | - | 554 | 600 | 652 | 760 | 770 | 830 | - | 940 | 1020 | 1115 | - | - | - |
| L1 | - | - | - | - | - | 235 | 235 | 235 | 259 | 400 | 400 | - | 410 | 410 | 410 | - | - | - | |
| 氣動 | H3 | 274 | 379 | 389 | 479 | 552 | 666 | 736 | 926 | 159 | 1127 | 1393 | 1468 | 1538 | 1370 | 1450 | - | - | - |
| L2 | 270 | 405 | 405 | 576 | 576 | 776 | 776 | 776 | 1060 | 1060 | 1360 | 1360 | 1360 | 2840 | 2840 | - | - | - | |
API美標鑄鋼固定球閥 Class 300Lb 主要連接尺寸及重量
| 公稱通徑DN | 2 | 21/2 | 3 | 4 | 5 | 6 | 8 | 10 | 12 | 14 | 16 | 18 | 20 | 24 | 28 | 32 | 36 | 40 | |
| d1 | 51 | 64 | 76 | 102 | 127 | 152 | 203 | 254 | 305 | 337 | 387 | 438 | 489 | 591 | 686 | 781 | 876 | 978 | |
| L | RF | 216 | 241 | 283 | 305 | 381 | 403 | 502 | 568 | 648 | 762 | 838 | 914 | 991 | 1143 | 1346 | 1524 | 1727 | 1880 |
| BW | 216 | 241 | 283 | 305 | 381 | 457 | 521 | 559 | 635 | 762 | 838 | 914 | 991 | 1143 | 1346 | 1524 | 1727 | 1880 | |
| H | 102 | 114 | 127 | 152 | 184 | 219 | 273 | 360 | 395 | 430 | 470 | 550 | 580 | 700 | 800 | 950 | 1100 | 1200 | |
| 手動 | H1 | 107 | 125 | 152 | 178 | 300 | 330 | 398 | 495 | 580 | 625 | 670 | 698 | 840 | 1050 | 1100 | 1150 | 1247 | 1374 |
| E | - | - | - | - | - | - | 116 | 116 | 171 | 171 | 257 | 257 | 257 | 150 | 83 | 83 | 123 | 123 | |
| F | - | - | - | - | - | - | 350 | 350 | 420 | 420 | 400 | 400 | 400 | 410 | 650 | 650 | 735 | 735 | |
| W | 230 | 400 | 400 | 650 | 1050 | 1050 | 600 | 600 | 800 | 800 | 800 | 800 | 800 | 800 | 800 | 800 | 800 | 800 | |
| Wt(Kg) | 15 | 24 | 30 | 55 | 87 | 118 | 255 | 370 | 533 | 640 | 1030 | 1524 | 2100 | 4200 | 5300 | 7860 | 8684 | 10300 | |
| 電動 | H2 | - | - | - | - | - | 235 | 235 | 400 | 400 | 410 | 410 | - | 420 | 690 | 690 | - | - | - |
| L1 | - | - | - | - | - | 74 | 350 | 350 | 420 | 420 | 400 | - | 400 | 410 | 650 | - | - | - | |
| 氣動 | H3 | 340 | 379 | 452 | 479 | 646 | 666 | 814 | 1002 | 1059 | 1150 | 1205 | 1250 | 1295 | 1390 | 1470 | - | - | - |
| L2 | 405 | 405 | 574 | 574 | 756 | 756 | 1060 | 1060 | 1060 | 1360 | 1360 | 2840 | 2840 | 3300 | 3300 | - | - | - | |
API美標鑄鋼固定球閥 Class 400Lb 主要連接尺寸及重量
| 公稱通徑DN | 2 | 2 1/2 | 3 | 4 | 6 | 8 | 10 | 12 | 14 | 16 | 20 | 24 | 28 | |
| d1 | 51 | 64 | 76 | 102 | 152 | 203 | 254 | 305 | 337 | 387 | 489 | 591 | 686 | |
| L | RF | 292 | 330 | 356 | 406 | 495 | 597 | 673 | 762 | 826 | 902 | 1054 | 1232 | 1397 |
| BW | 295 | 333 | 359 | 410 | 498 | 600 | 676 | 765 | 829 | 905 | 1060 | 1241 | 1410 | |
| H | 114 | 124 | 133 | 159 | 250 | 294 | 395 | 445 | 500 | 530 | 660 | 800 | 900 | |
| 650手735動 | H1 | 108 | 155 | 197 | 235 | 300 | 374 | 445 | 512 | 550 | 615 | 810 | 1010 | 1180 |
| E | 116 | 116 | 116 | 116 | 116 | 171 | 171 | 257 | 257 | 257 | 150 | 83 | 123 | |
| F | 350 | 350 | 350 | 350 | 350 | 420 | 420 | 400 | 400 | 400 | 410 | 650 | 735 | |
| W | 600 | 600 | 600 | 600 | 600 | 800 | 800 | 800 | 800 | 800 | 800 | 800 | 800 | |
| Wt(Kg) | 23 | 35 | 49 | 91 | 192 | 355 | 640 | 880 | 1100 | 1540 | 2800 | 530 | 5700 | |
| 電動 | H2 | - | - | - | - | 554 | 574 | 931 | 771 | 867 | 805 | 979 | 1085 | 1147 |
| L1 | - | - | - | - | 235 | 235 | 400 | 400 | 410 | 410 | 420 | 690 | 690 | |
| 電動 | H3 | 340 | - | - | 576 | 666 | 895 | 1002 | 1059 | 1160 | 1250 | 1320 | 1470 | 1520 |
| L2 | 405 | - | - | 479 | 756 | 1060 | 1060 | 1360 | 1360 | 2840 | 2840 | 3300 | 3300 | |
API美標鑄鋼固定球閥 Class 600Lb 主要連接尺寸及重量
| 公稱通徑DN | 2 | 2 1/2 | 3 | 4 | 6 | 8 | 10 | 12 | 14 | 16 | 20 | 24 | 28 | |
| d1 | 51 | 64 | 76 | 102 | 152 | 203 | 254 | 305 | 337 | 387 | 489 | 591 | 686 | |
| L | RF | 292 | 330 | 356 | 432 | 559 | 660 | 787 | 838 | 889 | 991 | 1194 | 1397 | 1549 |
| BW | 295 | 333 | 359 | 435 | 562 | 664 | 791 | 841 | 892 | 994 | 1200 | 1407 | 1562 | |
| H | 114 | 124 | 133 | 159 | 250 | 294 | 395 | 445 | 500 | 530 | 660 | 800 | 900 | |
| 手動 | H1 | 108 | 155 | 197 | 235 | 300 | 374 | 445 | 512 | 550 | 615 | 810 | 1010 | 1180 |
| E | 116 | 116 | 116 | 116 | 116 | 171 | 171 | 257 | 257 | 257 | 150 | 83 | 123 | |
| F | 350 | 350 | 350 | 350 | 350 | 420 | 420 | 400 | 400 | 400 | 410 | 650 | 735 | |
| W | 600 | 600 | 600 | 600 | 600 | 800 | 800 | 800 | 800 | 800 | 800 | 800 | 800 | |
| Wt(Kg) | 35 | 38 | 55 | 102 | 232 | 390 | 710 | 960 | 1700 | 1970 | 3250 | 5800 | 6700 | |
| 電動 | H2 | - | - | - | - | 569 | 658 | 694 | 765 | 825 | 917 | 998 | 1098 | 1185 |
| L1 | - | - | - | - | 235 | 259 | 400 | 410 | 410 | 420 | 690 | 690 | 690 | |
| 電動 | H3 | 340 | - | - | 479 | 666 | 895 | 1002 | 1059 | 1160 | 1250 | 1320 | 1470 | 1520 |
| L2 | 405 | - | - | 576 | 756 | 1060 | 1060 | 1360 | 1360 | 2840 | 2840 | 3300 | 3300 | |
API美標鑄鋼固定球閥 Class 900Lb 主要連接尺寸及重量
| 公稱通徑DN | 2 | 2 1/2 | 3 | 4 | 6 | 8 | 10 | 12 | 14 | 16 | 18 | 20 | 24 | |
| d1 | 51 | 64 | 76 | 102 | 152 | 203 | 254 | 305 | 327 | 375 | 426 | 473 | 572 | |
| L | RF | 368 | 419 | 381 | 457 | 610 | 737 | 838 | 965 | 1029 | 1130 | 1219 | 1321 | 1549 |
| BW | 371 | 422 | 384 | 460 | 613 | 740 | 841 | 968 | 1038 | 1140 | 1232 | 1334 | 1568 | |
| H | 217 | 241 | 259 | 297 | 360 | 322 | 420 | 470 | 510 | 600 | 700 | 720 | 810 | |
| 手動 | H1 | 126 | 158 | 191 | 216 | 270 | 394 | 502 | 572 | 675 | 762 | 866 | 894 | 965 |
| E | 116 | 116 | 116 | 116 | 171 | 171 | 257 | 257 | 150 | 150 | 180 | 180 | 220 | |
| F | 350 | 350 | 350 | 350 | 420 | 420 | 400 | 400 | 410 | 410 | 650 | 650 | 735 | |
| W | 600 | 600 | 600 | 600 | 800 | 800 | 800 | 800 | 800 | 800 | 800 | 800 | 800 | |
| Wt(Kg) | 50 | 60 | 80 | 125 | 270 | |||||||||
注:
1.本網頁的API美標鑄鋼固定球閥結構、結構圖、尺寸、參數等主要性能參數,以及安裝尺寸圖、安裝尺寸表均只適用于參考,詳細CAD圖、安裝圖、以及產品說明書請向賽泰閥門營銷人員索取。
2.由于編輯水平有限,錯誤和不妥之處在所難免,真誠希望您批評指正。
API美標鑄鋼固定球閥相關產品
下一頁:GB美標鑄鋼固定球閥
返回至本系列目錄:球閥