GB鑄鋼固定球閥

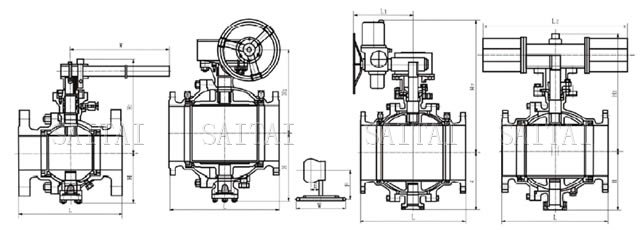
GB鑄鋼固定球閥外形尺寸圖
應用規范:
- 設計、制造 按GB12237-89
- 結構長度按 GB12221-89
- 連接法蘭:JB79-94
- 閥門檢查和試驗按JB13927-89
PN1.6 MPa 主要連接尺寸及重量:
| 公稱通徑DN | 50 | 80 | 100 | 150 | 200 | 250 | 300 | 350 | 400 | 450 | 500 | |
| L | RF | 216 | 283 | 305 | 394 | 457 | 533 | 610 | 686 | 762 | 864 | 914 |
| BW | 216 | 283 | 305 | 457 | 521 | 559 | 635 | 762 | 838 | 914 | 991 | |
| H1 | 100 | 110 | 130 | 175 | 210 | 274 | 305 | 340 | 395 | 440 | 470 | |
| H | 165 | 90 | 200 | 270 | 300 | 380 | 420 | 450 | 530 | 560 | 605 | |
| W | 400 | 700 | 850 | 600 | 600 | 600 | 800 | 800 | 800 | 800 | 800 | |
| E | - | - | - | 116 | 116 | 116 | 171 | 171 | 257 | 257 | 257 | |
| F | - | - | - | 350 | 350 | 350 | 420 | 420 | 500 | 500 | 500 | |
| Wt(Kg) | 24 | 50 | 75 | 195 | 280 | 440 | 570 | 800 | 1480 | 2350 | 2400 | |
PN2.5 MPa主要連接尺寸及重量:
| 公稱通徑DN | 25 | 32 | 40 | 50 | 65 | 80 | 100 | 125 | 150 | 200 | 250 | 300 | 350 | 400 | 450 | 500 | 600 | 700 | |
| d1 | 25 | 32 | 40 | 50 | 65 | 80 | 100 | 125 | 150 | 200 | 250 | 300 | 337 | 387 | 438 | 489 | 591 | 686 | |
| L | 165 | 180 | 190 | 216 | 241 | 283 | 305 | 381 | 403 | 502 | 568 | 648 | 762 | 838 | 914 | 991 | 1143 | 1346 | |
| H | 50 | 55 | 80 | 102 | 114 | 127 | 152 | 184 | 219 | 273 | 360 | 395 | 430 | 470 | 550 | 580 | 700 | 800 | |
| 手動 | H1 | 75 | 85 | 95 | 107 | 125 | 152 | 178 | 300 | 330 | 398 | 495 | 580 | 625 | 670 | 698 | 840 | 1050 | 1100 |
| E | - | - | - | - | - | - | - | - | - | 116 | 116 | 171 | 171 | 257 | 257 | 257 | 150 | 83 | |
| F | - | - | - | - | - | - | - | - | - | 350 | 350 | 400 | 420 | 400 | 420 | 400 | 410 | 650 | |
| W | 160 | 160 | 230 | 230 | 400 | 400 | 650 | 1050 | 1050 | 600 | 600 | 800 | 800 | 800 | 800 | 800 | 800 | 800 | |
| Wt(Kg) | 4.5 | 5.7 | 7.0 | 15 | 24 | 30 | 55 | 87 | 118 | 255 | 370 | 533 | 640 | 1030 | 1524 | 2100 | 4200 | 5300 | |
| 電動 | H2 | - | - | - | - | - | - | - | - | 235 | 235 | 400 | 400 | 410 | 410 | - | 420 | 690 | 690 |
| L1 | - | - | - | - | - | - | - | - | 74 | 350 | 350 | 420 | 420 | 400 | - | 400 | 410 | 650 | |
| 氣動 | H3 | 215 | 240 | 264 | 340 | 379 | 452 | 479 | 646 | 666 | 814 | 1002 | 1059 | 1150 | 1205 | 1250 | 1295 | 1390 | 1470 |
| L2 | 200 | 270 | 270 | 405 | 405 | 574 | 574 | 756 | 756 | 1060 | 1060 | 1060 | 1360 | 1360 | 2840 | 2840 | 3300 | 3300 | |
PN4.0 MPa主要連接尺寸及重量:
| 公稱通徑DN | 25 | 32 | 40 | 50 | 65 | 80 | 100 | 125 | 150 | 200 | 250 | 300 | 350 | 400 | 450 | 500 | 600 | 700 | |
| d1 | 25 | 32 | 40 | 50 | 65 | 80 | 100 | 125 | 150 | 200 | 250 | 300 | 337 | 387 | 438 | 489 | 591 | 686 | |
| L | 165 | 180 | 190 | 216 | 241 | 283 | 305 | 381 | 403 | 502 | 568 | 648 | 762 | 838 | 914 | 991 | 1143 | 1346 | |
| H | 50 | 55 | 80 | 102 | 114 | 127 | 152 | 184 | 219 | 273 | 360 | 395 | 430 | 470 | 550 | 580 | 700 | 800 | |
| 手動 | H1 | 75 | 85 | 95 | 107 | 125 | 152 | 178 | 300 | 330 | 398 | 495 | 580 | 625 | 670 | 698 | 840 | 1050 | 1100 |
| E | - | - | - | - | - | - | - | - | - | 116 | 116 | 171 | 171 | 257 | 257 | 257 | 150 | 83 | |
| F | - | - | - | - | - | - | - | - | - | 350 | 350 | 400 | 420 | 400 | 420 | 400 | 410 | 650 | |
| W | 160 | 160 | 230 | 230 | 400 | 400 | 650 | 1050 | 1050 | 600 | 600 | 800 | 800 | 800 | 800 | 800 | 800 | 800 | |
| Wt(Kg) | 9 | 13 | 16 | 19 | 24 | 30 | 55 | 87 | 118 | 255 | 370 | 533 | 640 | 1030 | 1524 | 2100 | 4200 | 5300 | |
| 電動 | H2 | - | - | - | - | - | - | - | - | 235 | 235 | 400 | 400 | 410 | 410 | - | 420 | 690 | 690 |
| L1 | - | - | - | - | - | - | - | - | 74 | 350 | 350 | 420 | 420 | 400 | - | 400 | 410 | 650 | |
| 氣動 | H3 | 215 | 240 | 264 | 340 | 379 | 452 | 479 | 646 | 666 | 814 | 1002 | 1059 | 1150 | 1205 | 1250 | 1295 | 1390 | 1470 |
| L2 | 200 | 270 | 270 | 405 | 405 | 574 | 574 | 756 | 756 | 1060 | 1060 | 1060 | 1360 | 1360 | 2840 | 2840 | 3300 | 3300 | |
PN6.4 MPa主要連接尺寸及重量:
| 公稱通徑DN | 50 | 65 | 80 | 100 | 150 | 200 | 250 | 300 | 350 | 400 | 500 | 600 | 700 | |
| d1 | 50 | 65 | 80 | 100 | 150 | 200 | 250 | 300 | 337 | 387 | 489 | 591 | 686 | |
| L | 292 | 330 | 356 | 406 | 495 | 597 | 673 | 762 | 826 | 902 | 1054 | 1232 | 1397 | |
| H | 114 | 124 | 133 | 159 | 250 | 294 | 394 | 445 | 500 | 530 | 660 | 800 | 900 | |
| 手動 | H1 | 108 | 155 | 197 | 235 | 300 | 374 | 445 | 512 | 550 | 615 | 810 | 1010 | 1180 |
| E | 116 | 116 | 116 | 116 | 116 | 171 | 171 | 257 | 257 | 257 | 150 | 83 | 123 | |
| F | 350 | 350 | 350 | 350 | 350 | 420 | 420 | 400 | 400 | 400 | 410 | 650 | 735 | |
| W | 600 | 600 | 600 | 600 | 600 | 800 | 800 | 800 | 800 | 800 | 800 | 800 | 800 | |
| Wt(Kg) | 23 | 35 | 49 | 91 | 192 | 355 | 640 | 880 | 1100 | 1540 | 2800 | 5300 | 5700 | |
| 電動 | H2 | - | - | - | - | 554 | 574 | 731 | 771 | 867 | 805 | 979 | 1085 | 1148 |
| L1 | - | - | - | - | 235 | 235 | 400 | 400 | 410 | 410 | 420 | 690 | 690 | |
| 氣動 | H3 | 340 | - | - | 479 | 666 | 895 | 1002 | 1059 | 1160 | 1250 | 1320 | 1470 | 1520 |
| L2 | 405 | - | - | 576 | 756 | 1060 | 1060 | 1360 | 1360 | 2840 | 2840 | 3300 | 3300 | |
PN10.0 MPa主要連接尺寸及重量:
| 公稱通徑DN | 50 | 65 | 80 | 100 | 150 | 200 | 250 | 300 | 350 | 400 | 500 | 600 | 700 | |
| d1 | 50 | 65 | 80 | 100 | 150 | 200 | 250 | 300 | 337 | 387 | 489 | 591 | 686 | |
| L | 292 | 330 | 356 | 406 | 559 | 660 | 787 | 838 | 889 | 991 | 1194 | 1397 | 1549 | |
| H | 114 | 124 | 133 | 159 | 250 | 294 | 394 | 445 | 500 | 530 | 660 | 800 | 900 | |
| 手動 | H1 | 108 | 155 | 197 | 235 | 300 | 374 | 445 | 512 | 550 | 615 | 810 | 1010 | 1180 |
| E | 116 | 116 | 116 | 116 | 116 | 171 | 171 | 257 | 257 | 257 | 150 | 83 | 123 | |
| F | 350 | 350 | 350 | 350 | 350 | 420 | 420 | 400 | 400 | 400 | 410 | 650 | 735 | |
| W | 600 | 600 | 600 | 600 | 600 | 800 | 800 | 800 | 800 | 800 | 800 | 800 | 800 | |
| Wt(Kg) | 35 | 38 | 55 | 102 | 232 | 390 | 710 | 960 | 1700 | 1970 | 3250 | 5800 | 6700 | |
| 電動 | H2 | - | - | - | - | 569 | 658 | 694 | 765 | 825 | 917 | 998 | 1098 | 1185 |
| L1 | - | - | - | - | 235 | 259 | 400 | 410 | 410 | 420 | 690 | 690 | 690 | |
| 氣動 | H3 | 340 | - | - | 479 | 666 | 895 | 1002 | 1059 | 1160 | 1250 | 1320 | 1470 | 1520 |
| L2 | 405 | - | - | 576 | 756 | 1060 | 1060 | 1360 | 1360 | 2840 | 2840 | 3300 | 3300 | |
注:
1.本網頁的GB鑄鋼固定球閥結構、結構圖、尺寸、參數等主要性能參數,以及安裝尺寸圖、安裝尺寸表均只適用于參考,詳細CAD圖、安裝圖、以及產品說明書請向賽泰閥門營銷人員索取。
2.由于編輯水平有限,錯誤和不妥之處在所難免,真誠希望您批評指正。
下一頁:API鍛鋼固定球閥
返回至本系列目錄:球閥
上一頁:API美標鑄鋼固定球閥